Tregenna Group
Video

SILK MILLS

Taunton

Not an estate. Not a phase. Just two remarkable homes in the right place.

Melton House is the final home at our Silk Mills development – a smart, detached four-bed with a garage, a southeast-facing garden, and a whole load of built-in efficiency. Solar panels. Battery storage. Underfloor heating. Air source tech. It’s tucked away, but not out of the way – just minutes from schools, shops, the park & ride, and the best of Taunton.

Community Built. Owners Settled.

Melton House is move-in ready in every sense. The flooring is laid, the kitchen fitted, the garden turfed, and the driveway finished to a high standard. Electric gates are in place and fully operational, offering both privacy and a sense of arrival. Every space has been carefully completed to create a home that feels balanced, bright and easy to live in – inside and out. There’s no need to wait or imagine what it could be. Everything’s ready. Simply bring your boxes, unlock the door, and enjoy the comfort of a home that’s been designed – and delivered – with care.

AVAILABILITY AND PRICING

For current pricing details and to secure your home, please contact our sales team.

Loden House: SOLD

Melton House: SOLD

NATURE ON THE DOORSTEP. TOWN ROUND THE CORNER.

It’s rare to find a home that feels this well connected, and yet this quietly tucked away. Melton House sits just off Silk Mills Road – close enough to everything, yet surrounded by trees, trails, and sky. You’ll wake up with nature outside your window and still make it to work or school in no time. Musgrove Hospital and Somerset College? Just around the corner. Town centre and train station? Practically on call.

On weekends, you’ve got Netherclay Community Woodland on one side, French Weir and Longrun Meadow on the other. Walks, runs, cycles, picnics – they’re not plans, they’re part of the scenery. It’s the kind of setting that lets you breathe deeper, move slower, and get outside more – without giving up the perks of a great local pub or a quick dash to the shops.

Need to go further? No problem. The M5 is just up the road, putting Exeter, Bristol, and the Somerset coast within easy reach. Whether it’s a morning meeting in the city or a Saturday out on the Quantocks, you’re always well-placed to get going.

This is a place where weekdays run smoothly and weekends stretch out beautifully. A location that doesn’t ask you to choose between connection and calm – it gives you both.

30

HOMES AT SILK MILLS

LODEN HOUSE & MELTON HOUSE

Effortless flow. Everyday function

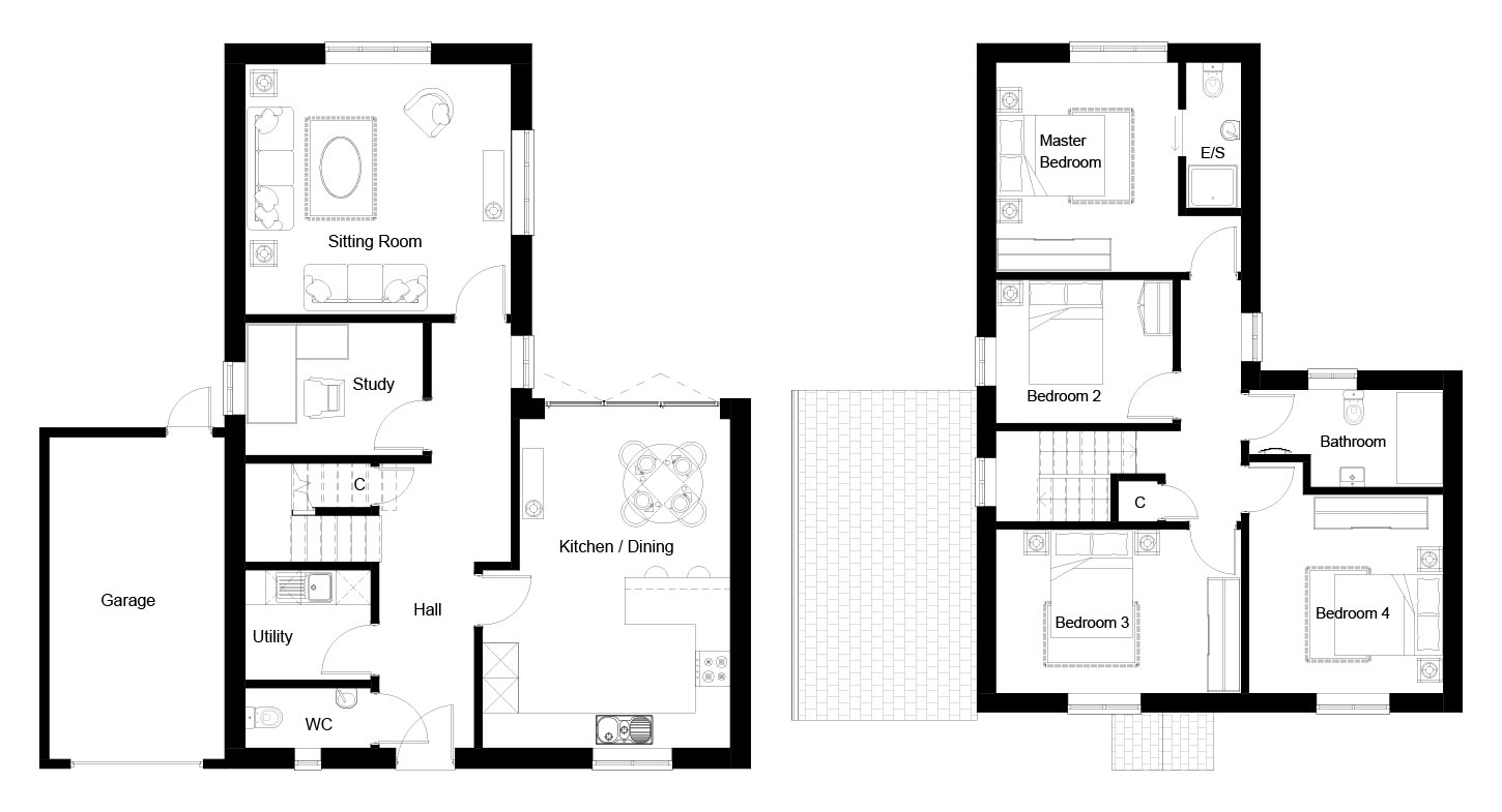
Step through the door and you’re welcomed by a wide, light-filled hallway that sets a calm, confident tone. At the front, the kitchen and dining space is generous and well-planned – offering plenty of room for everyday life to unfold, with full-width bifold doors that open directly onto the southeast-facing garden. At the rear, the living room provides a peaceful retreat, while a separate study offers just the right amount of quiet when it’s time to focus. A utility room and ground-floor WC complete the layout – because convenience shouldn’t feel like an afterthought.

Upstairs, the staircase – finished with sleek glass balustrades – leads to a bright landing and four double bedrooms, offering flexibility for family, guests or that long-promised dressing room. The principal bedroom includes a stylish en-suite, while the family bathroom is perfectly sized for sharing (without stepping on too many toes).

Outside, the garden is superbly proportioned, with a generous patio that’s just waiting for its first sunny weekend. There’s also rear access into the garage. Out front, electric gates provide privacy and peace of mind, opening onto a neat gravel driveway with plenty of space for two to three cars. Everything you need – already in place.

WHAT MAKES LODEN & MELTON HOUSES SPECIAL?

Form. Function. And a little less Grid

Loden & Melton houses take quietly clever approach to comfort – delivering everyday warmth and efficiency through some of the most forward-thinking sustainable tech on the market. An air source heat pump provides low-carbon heating and hot water, while an integrated solar energy system – complete with rooftop PV panels and in-house battery storage – works year-round to reduce your reliance on the grid by up to 55%. Even on cloudy days, that battery keeps working behind the scenes, topping up the energy you use without topping up your bills.

Underfloor heating across the entire ground floor brings consistent, ambient warmth without the wall clutter, while high-spec insulation and air-tight construction mean that heat stays where it should: inside. The result? A home that’s officially A-rated for energy performance.

So while everything feels calm, comfortable and beautifully finished on the surface, there’s a whole lot going on behind the walls to make life easier, cleaner, and cheaper to run.

LOCAL ATTRACTIONS AND ACTIVITIES

Heritage & Local Culture

Castles. Galleries. And the odd standing ovation.
Whether you’re uncovering Taunton’s past at the Museum of Somerset or catching a show at The Brewhouse, culture lives and breathes here. Seasonal markets, indie exhibitions, and year-round events bring a quiet creative pulse to life in the town.

Green Space & Outdoor Living

Parks that feel like a deep breath.
Taunton’s full of leafy spaces made for slow strolls, fast dogs, or lying under a tree pretending not to check emails. From the lawns and rose gardens of Vivary Park to riverside paths along the Tone, calm is always within reach.

Seaside & Countryside Escapes

Beach or hills? You don’t have to choose.
The Somerset coast is just down the road – Blue Anchor Bay, Kilve, and long, empty stretches to clear your head. Or head the other way and you’ve got the Quantocks and Exmoor: picnic spots, forest trails, and the kind of views you remember on Monday morning.

Day-to-Day Life & Community

The charm of the local. The ease of the familiar.
Artisan bakeries. Independent bookshops. Farmers markets. It’s all here – and so are the high street names when you need them. Taunton blends everyday ease with a close-knit community feel. And yes, your coffee order might just be remembered.

Connected & Accessible

Feels a world away. Isn’t.
London Paddington in under two hours. Easy routes to Bristol, Exeter, and the wider South West. Whether it’s your daily commute or a weekend dash to the city, Taunton keeps you close – without the chaos.

A Town That Feels Like Home

Big enough to offer choice. Small enough to feel yours.
With top schools, great healthcare, walkable streets and everything you need within easy reach, Taunton makes settling in feel simple. Whether you’re growing a family or putting down new roots, it just works.

Silk Mills

Specification

KITCHEN

  • Contemporary shaker style kitchen with soft close runners
  • Integrated oven, combi-microwave and induction hob
  • Integrated fridge freezer and dishwasher
  • Stainless steel one and half bowl undercounter sink with a chrome monobloc mixer tap
  • LED lighting throughout
  • Quartz worktop in kitchen & utility room
  • Space and plumbing for washing machine & tumble drier

BATHROOM & ENSUITE

  • Contemporary bathroom suites with back-to-wall WC & wall mounted designer basins with elegant chrome bottle-traps and vanity units
  • Wall mounted thermostatic bath filler mixer tap with independent shower fitting to bath
  • Luxury walk-in shower with glass screen, contemporary shower valves, multifunction shower head on variable riser & large overhead secondary shower head
  • Multi-panel bathroom wall panels

INTERNAL FINISHES

  • Contemporary oak doors with chrome lever handles
  • Woodwork finished in Dulux Satin Wood’ paint
  • Walls finished in ‘Dulux Brilliant White’ paint
  • Ceilings finished in ‘Dulux Contract White’ paint
  • High-performance insulation to achieve low energy demands
  • Oak hand and base rail glass balustrades

Heating

  • Bosch high-performance air-source heat pump for heating and hot water
  • Solar panels & battery storage
  • Underfloor heating throughout ground floor with Wi-Fi enabled capability
  • Efficient aluminium radiators to first floor

Electrical

  • Ceiling mounted smoke and heat detectors
  • Telephone, TV points & CAT6 cabling in relevant rooms

External Finishes

  • Electric entrance gates with remote controls & intercom system
  • Front entrance door with high security locking mechanism
  • Fitted entrance porch light with PIR detector and rear entrance light
  • Outside tap and electric power points
  • Low maintenance high quality uPVC double glazed windows and sliding bi-fold doors
  • Limestone paved terrace area
  • Turfed rear garden

DISCOVER MORE TREGENNA HOMES

The homes at Silk Mills are now fully sold. For more information on our other high-quality residential developments or to discuss upcoming opportunities, please get in touch or browse our latest projects.

Silk Mills

Taunton

REGISTER YOUR INTEREST TODAY